日光靜域—— 現代自然系住宅設計
- 預算待定
- 類型住宅
- 屋況新成屋
- 坪數32坪
- 風格日式風
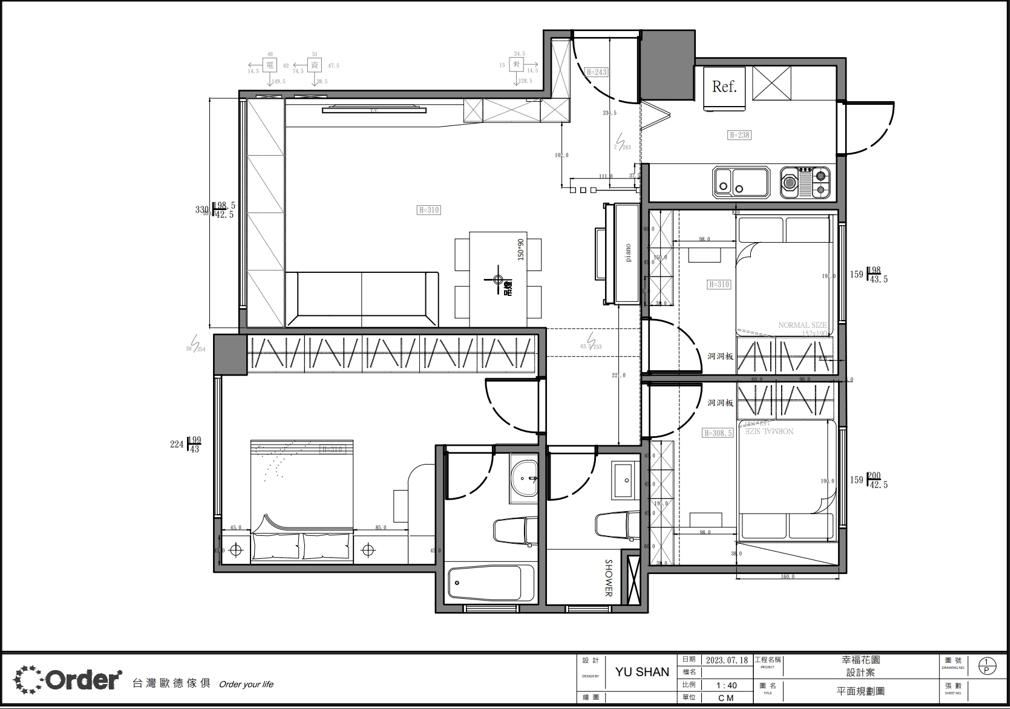
- 格局3房2廳2衛
- 地點新北市八里區
- 設計理念
- 低彩度大地色和白灰色系提升空間明亮感
日式居家風格注重空間開闊性和明亮度,看起來以乾淨、簡約為主,因此室內設計配色多採用低彩度和淺色調的顏色,例如白色、大地色系、淺灰色等,保持色調之間的平衡,避免過於鮮豔的顏色。
裝潢格局配置
- 社區名稱
- 幸福花園
設計介紹
當柔和愜意的日式風格水泥色彩的輕工業風設計,則會使整體空間呈現復古懷舊的氛圍,挑選原木和紋理感強烈的系統櫃,以及局部黑色燈櫃作為色彩規劃,讓空間不會過於柔和,保留工業的氣質,更貼近屋主喜愛的風格。
屋主訴求
- 希望有舒適的放鬆角落(閱讀 / 喝咖啡)
- 重視自然採光與空間明亮度
- 不喜歡過多裝飾,偏好簡約風格
設計師訴求
- 強化光影層次,提升空間質感
- 整合收納與美感(隱藏式設計)
- 讓小空間兼具機能與放鬆氛圍
特色材料
- 歐洲進口系統板材
- 仿清水模特殊塗料牆面
- 木紋飾面板電視櫃
- 白色木質百葉窗








































